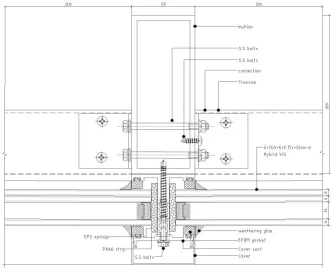
Our GVG 60 curtain walling and facade range maximises thermal efficiency with advanced sound proofing and achieves a Passive House Institute PH A+ rating. The system comes with internal tilt and turn opening options and is available in stainless steel or various colours. The GVG 60 system is the perfect choice for high end, high volume curtain walling designs, passive house buildings and large-scale commercial or public projects. With the addition of our PV solar vacuum units, our GVG 60 system will turn buildings into vertical solar farms.
Thermal Insulation:Level 10
Air Tightness:Level 8
Sound Insulation:Level 3-4
Water Tightness:Level 6
Wind Resistance:Level 9
Security Rating: RC3
If you want to download this information as a PDF, please complete and download the GVG 60 Curtain Wall Specifications.
We use cookies to improve your experience on our site. By using our site, you consent to cookies.
Manage your cookie preferences below:
Essential cookies enable basic functions and are necessary for the proper function of the website.
These cookies are needed for adding comments on this website.
Statistics cookies collect information anonymously. This information helps us understand how visitors use our website.
Google Analytics is a powerful tool that tracks and analyzes website traffic for informed marketing decisions.
Service URL: policies.google.com (opens in a new window)
You can find more information in our and .
